Септик ГРИНЛОС Аква 3 Миди
Преимущества над конкурентами
В отличие от конкурентов, в септиках ГРИНЛОС Аква короб с электрооборудованием установлен вне корпуса станции, поэтому гарантированно не подвержен затоплению.
В стандартную комплектацию септиков ГРИНЛОС уже входит биозагрузка, необходимая для тщательной переработки стоков.
Станции очистки ГРИНЛОС обладают надежными грунтозацепами, действительно предотвращающими всплытие оборудования на обводненных участках.
ГРИНЛОС Аква сразу укомплектован волосоуловителем, который эффективно задерживает волосы и прочие загрязнения, попавшие в канализацию вместе со стоками, не засоряется и легко чистится.
Особенности септика
ГРИНЛОС Аква 3 Миди – это бескомпрессорная станция переработки сточных вод. Конструкция данного септика позволяет принимать не более 240 л залпом, а производительность станции равна 0.6 м3/сутки. Септик подходит для комфортного проживания 3 человек.
Отличительными особенностями септика ГРИНЛОС Аква 3 Миди являются:В данной модели увеличена глубина, на которой можно подводить канализационную трубу, и она равна 100 см. Это будет полезным в том случае, если нет возможности выполнить врезку трубы на стандартной глубине (до 60 см).
Сброс стоков из станции осуществляется самотеком. Это значит, что очищенная вода сливается по трубе, которая идет под наклоном в сторону точки сброса.
Модификации септика ГРИНЛОС Аква 3 Миди
| Характеристики | ГРИНЛОС Аква 3 | ГРИНЛОС Аква 3 низкий корпус | ГРИНЛОС Аква 3 Пр | ГРИНЛОС Аква 3 низкий корпус Пр | ГРИНЛОС Аква 3 Миди | ГРИНЛОС Аква 3 Пр Миди |
|---|---|---|---|---|---|---|
| Тип сброса | Самотечный | Самотечный | Принудительный | Принудительный | Самотечный | Принудительный |
| Способ установки | стандартная | низкий корпус | с насосом | низкий корпус с насосом | удлиненная | удлиненная с насосом |
| Размер Д*Ш*В, мм | 1330*1330*1700 | 2000*1200*1200 | 1330*1330*1700 | 2000*1200*1200 | 1330*1330*2100 | 1330*1330*2100 |
| Вес, кг | 107 | 107 | 107 | 107 | 120 | 120 |
| Глубина залегания подводящей трубы, см |
60 | 60 | 60 | 60 | 100 | 100 |
| Цена | 980 013 тенге. | 1 057 382 тенге. | 1 076 725 тенге. | 1 141 199 тенге. | 1 044 487 тенге. | 1 134 752 тенге. |
Комплект поставки
- Корпус «Гринлос Аква» (1 шт.)
- Крышка (1 шт.)
- Съемный биофильтр (1 шт.)
- Рассекатель (1 шт.)
- Сотовая биозагрузка (1 шт.)
- Таймер (1 шт.)
- Рециркуляционный насос (1 шт.)
Эксплуатационная документация, в том числе:
- Технический паспорт «Гринлос Аква»
- Технический паспорт таймера
- Технический паспорт рециркуляционного насоса
- Сертификат соответствия ГОСТ Р ИСО 9001-2015 (ISO 9001:2005)
- Сертификат соответствия системе ГОСТ Р
- Декларация соответствия EAC
Размеры септика
Конструкция септика ГРИНЛОС Аква 3 Миди представляет из себя цилиндр с горловиной, выполненный из монолитного полипропилена. Внутри цилиндра с помощью перегородок выделены четыре камеры, последовательно сообщающиеся между собой через отверстия и патрубки в перегородках, расположенные на определенной высоте.
Подробнее о размерах станции:
- H1 — Полная высота септика составляет 2.1 м.
- H2 — Высота от верха крышки до центра подводящей трубы – 1000 мм.
- H3 — Высота без горловины – 1200 мм.
- H4 — Высота крышки – 50 мм.
- D1 — Диаметр корпуса – 1.33 м.
- D2 — Диаметр крышки – 0.93 м.
- D3 вх/вых — Диаметры входящей и выходящей труб составляют 110/110 мм соответственно.
Возможно изготовление по индивидуальным размерам
Преимущества
Принцип работы септика
Станции очистки ГРИНЛОС Аква 3 Миди предназначены для расщепления и переработки основных органических загрязнений, содержащихся в бытовых сточных водах. Попадая в септик и перемещаясь между камерами в корпусе, нечистоты последовательно проходят этапы усреднения, разделения и отстаивания, разделения на фракции (физическая переработка), а также взаимодействуют с бактериями из биозагрузки (биологическая переработка). Далее стоки усредняются и отстаиваются. Осветленная вода выводится наружу самотечным или принудительным образом.

Монтаж септика ГРИНЛОС Аква 3 Миди
- Выбор местоположения
Оборудование следует рассматривать в качестве составной части системы водоотведения. Оно может быть рассчитано на обслуживание одного или нескольких индивидуальных жилых домов. В ходе проектирования системы водоотведения следует принимать во внимание несколько ключевых особенностей территории, на которой запланирована установка оборудования.
К таковым относят:
- состав почвы;
- уровень прохождения грунтовых вод и его возможные колебания
- специфику рельефа местности;
- удаленность от различных водозаборных сооружений;
- погодно-климатические особенности данного региона.
- Монтаж и установка
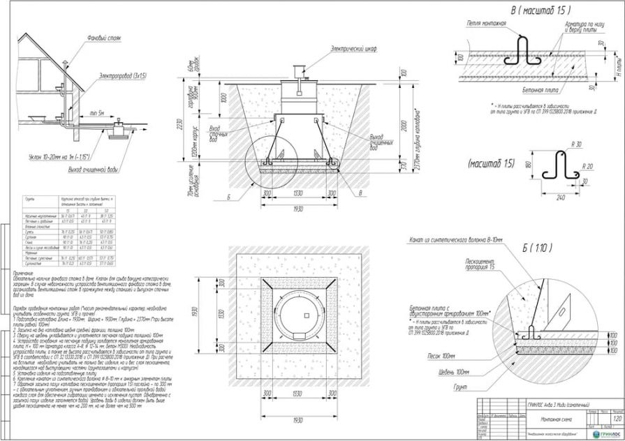
Целесообразно доверить выбор и монтаж оборудования специализированной компании. Перед непосредственным монтажом Оборудования специалисты осуществляют подготовку котлована. Его размеры определяются конструктивными особенностями выбранной модели оборудования. Ознакомиться с данными параметрами можно в приложении к ПС. По боковым стенкам корпуса должно быть сохранено свободное расстояние до грунта не менее 250 мм. Дно котлована нуждается в более тщательной подготовке. Его подвергают выравниванию с последующей засыпкой слоем песка, обладающим толщиной в пределах 10-15 см. Пазухи котлована подвергают обратной засыпке при помощи песка, который послойно поливают водой. Прежде чем приступить к аналогичным работам, емкость оборудования на четверть заполняют водой. Впоследствии количество воды внутри емкости увеличивают соразмерно уровню засыпки песком наружных стенок. Каждые 200 мм песка подвергаются ручному уплотнению.
Поверх корпуса оборудования выполняется песчаная обсыпка на высоту 150-300 мм. Для подсоединения оборудования к внутренней канализационной магистрали применяют канализационные трубы, предназначенные для эксплуатации.
Уклон труб при создании трубопроводной сети должен неизменно составлять 2,5-3 см на каждый метр расстояния.
Недопустимо:
- заглубление в грунт на глубину свыше одного метра от верхнего края корпуса оборудования, если отсчет осуществляется от нулевой отметки грунта;
- применение строительной техники в процессе обратной засыпки оборудования;
- использование строительной техники для организации уплотнения грунта;
- использование колющих предметов, которые могут спровоцировать механическое повреждение емкости;
- передвигаться на транспорте в непосредственной близости от места проведения работ по установке оборудования.
Схемы монтажа:
Способы отвода очищенной воды
Монтаж с отводом стоков в инфильтратор. Пластиковые инфильтраторы подземного типа для доочистки и поглощения грунтом хозяйственно-бытовых, дождевых и ливневых стоков широко пользуются спросом при строительстве и организации полей фильтрации (поглощения).
Большая вместимость инфильтратора и простота монтажа способствует быстрому возведению полей фильтрации в загородном и промышленном строительстве. Инфильтраторы идеально сочетаются с любыми видами септиков, замыкая предварительную очистку стоков на эффективное "дренажное поле".
Монтаж с самотечным отводом очищенных сточных вод в дренажную канаву. Подходит для хорошо впитывающих грунтов (песок, супесь) и низком уровне грунтовых вод. При выборе данного способа водоотведения необходимо обеспечить свободное отведение очищенной воды от выпуска трубопровода, необходимо полностью исключить под-топление выпуска. В противном случае, в летний период, трубопровод будет заиливаться и засоряться, а Станция будет подвержена обратному затоплению водами с точки сброса. В зимний период, трубопровод и точка сброса будут промерзать. Такие условия работы оборудования приведут к аварии.
Монтаж с отводом очищенных сточных вод в дренажный элемент. Этот вариант позволит в значительной степени сэкономить место на участке, однако дренажный элемент в большей степени подвержен затоплению в условиях подъема грунтовых вод.
Монтаж с отводом очищенных сточных вод в фильтрующий колодец. Подходит для хорошо поглощающих грунтов (песок, супесь) и низком уровне грунтовых вод. Колодец поглощения может быть выполнен из бетонных колец или при помощи пластикового колодца с перфорированным основанием и стенками. При монтаже колодца поглощения на выпуск трубы рекомендуется смонтировать обратный клапан для защиты Станции от обратного затопления в периоды активного снеготаяния или в дождливое межсезонье. Непосредственно под выпуском отводящей трубы от Станции, рекомендуется смонтировать аварийный насос, для дополнительной защиты Станции от обратного затопления из колодца поглощения.
Эксплуатация и обслуживание
Запрещается сброс в канализацию:
- строительного мусора, песка, цемента, извести, строительных смесей и прочих отходов строительства;
- нефтепродуктов, горюче-смазочных материалов, красок, растворителей, антифризов, кислот, щелочей, спирта и т. п.;
- промывных вод фильтров бассейна, содержащих дезинфицирующие компоненты (озон, активный хлор и им подобные);
- промывных (регенерационных) вод от установок подготовки и очистки воды с применением марганцево-кислого калия или других внешних окислителей;
- большого количества стоков после отбеливания белья хлорсодержащими препаратами («Персоль», «Белизна» и им подобные);
- лекарств и лекарственных препаратов;
- большого количества шерсти домашних животных;
- применение антисептических насадок с дозаторами на унитаз;
- применение биологических препаратов, предназначенных для очистки труб; применение биологических препаратов, предназначенных для интенсификации работы септиков и очистных сооружений.
Разрешается сброс в канализацию:
- мягкой, легко разлагающейся туалетной бумаги;
- стоков стиральных машин, при условии применения стиральных порошков без хлора;
- кухонных стоков с использованием моющих средств без хлора;
- душевых и банных стоков;
- небольшого количества средств для чистки унитазов, санфаянса и кухонного оборудования.
Консервация в случае сезонного использования
В случае, если септик ГРИНЛОС Аква 3 Миди будет использоваться сезонно, либо будет простаивать в течение не менее трех месяцев, необходимо провести процедуру консервации.
Консервации ГРИНЛОС Аква 3 Миди включает в себя несколько базовых этапов:
- Отключение насосного оборудования от сети электроснабжения;
- Отсоединение патрубков и демонтаж насоса, обеспечивающего принудительный сброс нечистот из третьей камеры (для моделей Аква Пр);
- Откачка скопившейся в емкостях жидкости поочередно при помощи фекального насоса и ассенизаторской машины, с последующим заполнением емкости чистой водой;
- Заполнение всех камер оборудования чистой водой до места расположения лотка входной трубы.
Похожие товары
Фотогалерея выполненных монтажей
Остались вопросы? Свяжитесь с нами!
Мы всегда готовы бесплатно проконсультировать по вопросам, связанным с продукцией Гринлос, а также помочь с выбором оптимальной модели септика для решения ваших задач.



