ГРИНЛОС Профи 8
Преимущества над конкурентами
Осаждение взвешенных частиц протекает до 4-х раз эффективнее, чем в обычном отстойнике, что позволяет достичь высоких показателей по переработке стоков.
Аноксидная камера Наличие аноксидной камеры предотвращает процесс вымывания активного ила при залповом сбросе, запускает процессы разложения соединений фосфора и азота.
Корпус септика ГРИНЛОС Профи 8 и материалы обвязки выполнены из полипропилена и полностью инертны к действию коррозийных сред.
Использование двух видом ила – свободного и фиксированного – позволяет увеличить интервал между плановым обслуживанием септиков ГРИНЛОС Профи 8.
Корпус станции очистки ГРИНЛОС Профи 8 оснащен обечайкой из полипропилена, наличие которой увеличивает прочность конструкции.
Материал изготовления станции очистки ГРИНЛОС Профи 8 – полипропилен - абсолютно герметичен и исключает просачивание жидкостей.
Особенности
ГРИНЛОС Профи 8 — станция биологической очистки с залповым сбросом 480 л и производительностью 1.6 м3/сутки, что позволяет устанавливать септик на территории, где количество постоянно проживающих не превышает 8 человек.
Использование полипропилена в качестве основного материала изготовления септика обуславливает его небольшой вес, всего 270 кг, что дает преимущество при транспортировке и монтаже системы.
Септик ГРИНЛОС Профи 8 обладает самотечным сбросом, то есть очищенная вода выводится за ее станции по наклонной трубе под действием силы тяжести. Такой вариант рекомендуется применять при наличии в точке сброса дренажного колодца, глубокого оврага или поля фильтрации. Важно, чтобы грунт на участке обладал высокой впитывающей способностью через которое вода сможет быстро уходить, не застаиваясь.
Модификации септика ГРИНЛОС Профи 8
| Характеристики | ГРИНЛОС Профи 8 | ГРИНЛОС Профи 8 Пр |
|---|---|---|
| Тип сброса | Самотечный | Принудительный |
| Способ установки | стандартная | с насосом |
| Размер Д*Ш*В, мм | 3000*1280*1780 | 3000*1280*1780 |
| Вес, кг | 270 | 270 |
| Глубина залегания подводящей трубы, см |
60 | 60 |
| Цена | 2 385 558 тенге. | 2 453 256 тенге. |
Комплект поставки
- Корпус «ГРИНЛОС Профи 8» (1 шт)
- Крышка (2 шт)
- Компрессор (1 шт)
- Блок биозагрузки (3 шт)
- Эрлифт (2 шт)
- Кассета блока осветления (2 шт)
- Аэратор (1 шт)
Эксплуатационная документация, в том числе:
- Технический паспорт «ГРИНЛОС Профи» (1 шт)
- Сертификат соответствия ГОСТ Р ИСО 9001-2015 (ISO 9001:2005) (1 шт)
- Сертификат соответствия системе ГОСТ Р (1 шт)
- Декларация соответствия ЕАС (1 шт)
Документация
Принцип работы
Станция биологической очистки ГРИНЛОС Профи 8 предназначена для расщепления и переработки основных органических загрязнений, содержащихся в бытовых сточных водах. Эти процессы происходят в результате жизнедеятельности аэробных микроорганизмов, условия для жизнедеятельности которых создает станция.
В станции реализована современная многоступенчатая технология переработки сточных вод, которая представляет собой полный цикл механико-биологической переработки и включает следующие этапы:
- Сток поступает в приемную камеру-накопитель. В данной камере происходит накопление нерастворимых взвешенных веществ, поступающих со сточными водами. Одновременно в данной камере происходят анаэробные процессы денитрификации, цель которых удаление азота из стока.
- Из приемной камеры-накопителя сток попадает в камеру преаэрации. где инициируются процессы аэробной переработки стока, а также происходит нитрификация стока.
Переливы в ГРИНЛОС Профи 8 расположены таким образом, чтобы сточные воды протекали с наименьшей скоростью, благодаря чему в каждой камере происходит оседание грубодисперсных взвешенных частиц на дно.
Также осуществляется перемешивание очищаемой воды и активного ила из илового отстойника с помощью системы крупнопузырчатой аэрации, что сводит к минимуму перенос кислорода воздуха в обрабатываемую жидкость.
- Затем стоки поступают в аэротенк, где размещена инертная биологическая загрузка, насыщаются кислородом, взаимодействуют с фиксированным активным илом. В процессе аэрации происходит разбиение крупных частиц на более мелкие, насыщение стоков кислородом, создание комфортных условий для жизнедеятельности аэробных микроорганизмов и бактерий. Благодаря аэрации, при поступлении стоков происходит постепенное образование из субстрата хлопьев активного ила.
- Из приемной камеры-накопителя сток попадает в камеру преаэрации где инициируются процессы аэробной переработки стока, а также происходит нитрификация стока.
- Далее, в камере ламинарного отстойника, происходит осаждение дополнительного осадка. Задержанный осадок вместе с предварительно нитрифицированным стоком возвращается в аноксидную камеру. Наличие аноксидной камеры в септике ГРИНЛОС Профи 8 предотвращает процесс вымывания активного ила при залповом сбросе, запускает процессы разложения соединений фосфора. Осаждение взвешенных частиц в ламинарном отстойнике протекает до 4-х раз эффективнее, чем в обычном отстойнике.
Доказанная эффективность ламинарного отстойника позволяет достичь высоких показателей по переработке стока от взвешенных частиц.
Также осуществляется перемешивание очищаемой воды и активного ила из илового отстойника с помощью системы крупнопузырчатой аэрации, что сводит к минимуму перенос кислорода воздуха в обрабатываемую жидкость.
Монтаж септика ГРИНЛОС Профи 8
При проектировании и монтаже септика ГРИНЛОС Профи 8 необходимо руководствоваться рекомендациями Технического паспорта септика, проектной документацией, рекомендациями проектировщиков, а также действующими нормами и правилами:
- СП 45.13330.2017 Земляные сооружения, основания и фундаменты;
- СП 70.13330.2012 Несущие и ограждающие конструкции;
- СП 49.13330.2010. Безопасность труда в строительстве;
- СП 22.13330.2016 Основания зданий и сооружений;
- СП 32.13330.2018 Канализация. Наружные сети и сооружения; актуальное издание ПУЭ (правила устройства электроустановок).
Лица, выполняющие монтаж, должны иметь опыт и необходимую квалификацию, подтвержденную документально, для проведения строительных работ, а также для использования необходимой для проведения работ техники, инструментов и механизмов. Лица, выполняющие монтаж, должны знать и соблюдать правила противопожарной и электробезопасности, правила техники безопасности и охраны труда. Выполняя строительные работы необходимо использовать средства индивидуальной защиты и строго соблюдать внутренние правила проведения работ на объекте.
Монтаж ГРИНЛОС Профи 8, оборудования и трубопроводов, а также пусконаладочные работы должны осуществлять организации и специалисты, имеющие соответствующую квалификацию, имеющие строительные лицензии Госстроя РФ на проведение соответствующих работ, а для работ, связанных с монтажом оборудования, предназначенного для опасных жидкостей, специалисты должны быть аттестованы по правилам промышленной безопасности Ростехнадзора.
Выбор места для установки ГРИНЛОС Профи 8
Станцию переработки ГРИНЛОС Профи 8 следует располагать так, чтобы к ней мог беспрепятственно подъехать ассенизационный автомобиль. При этом над отстойником и над септиком в радиусе 2,5 м не допускается движение и стоянка автотранспорта. При необходимости организации стоянки или проезда автотранспорта, необходимо оборудовать разгрузочную плиту над очистным сооружением и над подводящей и отводящей трассами.
При планировке участка для канализационной системы с использованием септика ГРИНЛОС Профи 8 следует учитывать следующие рекомендации:
- защитный разрыв от дома не менее 5 м;
- расстояние от дороги и границы земельного участка не менее 5 м;
- защитный разрыв от водоема не менее 30 м;
- расстояние до ближайшего водозаборного пункта не менее 150 м.
Указанные расстояния носят рекомендательный характер. Точные размеры, на которые влияет в т. ч. грунт и рельеф земельного участка, определяются в каждом конкретном случае отдельно в процессе проектирования канализации.
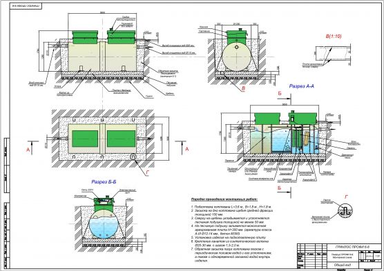
Схемы монтажа:
Эксплуатация и обслуживание ГРИНЛОС Профи 8
Для правильного, безаварийного функционирования станции биологической очистки ГРИНЛОС Профи 8, необходимо соблюдать правила эксплуатации и регулярно выполнять техобслуживание.
ЗАПРЕЩАЕТСЯ
- Проезд в радиусе 2,5 м от ГРИНЛОС Профи 8 и стоянка автотранспорта над всеми сооружениями септика.
- Поднимать уровень поверхности земли над станцией переработки без согласования с производителем или официальным представителем производителя.
- Cброс через септик воды из бассейнов, бытовых фильтров для очистки воды и т. п.
- Превышение залпового сброса.
- Сброс через станцию переработки ГРИНЛОС Профи 8 воды c повышенным содержанием солей (например, при обратной промывке фильтров).
- Сброс дезинфицирующих веществ.
- Отводить в септик дождевые и дренажные воды.
- Увеличение расхода воды свыше установленного для септика ГРИНЛОС Профи 8 на одного человека в размере до 200 л/сут.
- Использовать биологические препараты, предназначенные для прочистки ттенге.
- Использовать биологические препараты, предназначенные для интенсификации работы септиков и очистных сооружений.
Не допускается наличие неисправного сливного устройства унитаза или смесителей, в результате неисправности которых происходит постоянная течь воды.
Не допускается использовать септикГРИНЛОС Профи 8 без вентиляции главного стояка подводящей канализационной сети.
Не допускается засорение и деформация вентиляционных воздуховодов.
Не допускается отключение септика от электропитания в период эксплуатации.
Удаление осадка из первичного отстойника должно производиться не реже одного раза в год.
ВНИМАНИЕ! Изделие должно быть заполнено водой в процессе монтажа одновременно с засыпкой (во избежание выхода из строя ГРИНЛОС Профи 8, запрещается заполнять водой камеру электрооборудования).
ЗАПРЕЩЕНО хранение смонтированного изделия в опорожненном состоянии. Хранение септика в опорожненном состоянии может привести к «всплытию» станции переработки или/и внутренним деформациям.
ВНИМАНИЕ! При подключении септика обязательно обеспечить заземление. Подключение питания следует выполнять через УЗО с номинальным током утечки 10 мА и током теплового расцепителя 6А.
Похожие товары
Фотогалерея выполненных монтажей
Остались вопросы? Свяжитесь с нами!
Мы всегда готовы бесплатно проконсультировать по вопросам, связанным с продукцией Гринлос, а также помочь с выбором оптимальной модели септика для решения ваших задач.
