Септик ГРИНЛОС Пром 40
Особенности
ГРИНЛОС Пром 40 — это модульная аэрационная установка глубокой биологической переработки сточных вод, предназначенная для одновременного обслуживания 40 условных пользователей. Ее производительность равна 8 м3/сутки, а объем залпового сброса составляет 1800 литров.
Отличительными особенностями септика ГРИНЛОС Пром 40 являются:
- Тип сброса — самотечный. Это означает, что очищенная в станции вода выводится за ее пределы по наклонной трубе под действием силы тяжести. Такой вариант рекомендуется применять при наличии в точке сброса дренажного колодца, глубокого оврага или поля фильтрации. Важно, чтобы грунт на участке обладал высокой впитывающей способностью через которое вода сможет быстро уходить, не застаиваясь.
- Высота корпуса — 2.4 м. Станция подходит для монтажа во все виды почв: песок, глина, суглинок, грунты с высоким уровнем грунтовых вод.
Модификации септика ГРИНЛОС Пром 40
| Характеристики | ГРИНЛОС Пром 40 | ГРИНЛОС Пром 40 Пр |
|---|---|---|
| Тип сброса | Самотечный | Принудительный |
| Способ установки | стандартная | с насосом |
| Размер Д*Ш*В, мм | 5000*1920*2400 | 5000*1920*2400 |
| Вес, кг | 560 | 560 |
| Глубина залегания подводящей трубы, см |
60 | 60 |
| Цена | 6 553 191 тенге. | 6 615 087 тенге. |
Преимущества
Высокая степень переработки стоков
Такая высокая эффективность достигается за счет использования самых современных технологий переработки.
Простота монтажа
Современная конструкция корпуса упрощает ее установку, а использование полипропилена делает ее легче.
Срок службы 50 лет
Толстые листы качественного полипропилена устойчивы к износу, химическим и механическим повреждениям.
Высокая прочность конструкции
Корпус ГРИНЛОС Пром 40 имеет цилиндрическую форму, которая обеспечивает дополнительную устойчивость к сдавливанию.
Низкие эксплуатационные расходы
Продуманное устройство станций позволяет свести к минимуму необходимость их технического обслуживания
Гарантия качества и безопасности
Все ЛОС ГРИНЛОС имеют сертификаты ISO 9001, а также успешно прошли экспертизу качества и безопасности
Документация
Принцип работы
Септик ГРИНЛОС Пром 40 использует современную многоступенчатую технологию переработки сточных вод. Она представляет собой цикл механико-биологической переработки, состоящий из 6 этапов, каждый из которых происходит в отдельной камере:
- Сток поступает в приемную камеру. Здесь отстаиваются и накапливаются нерастворимые вещества, поступающие со сточными водами. Одновременно происходят анаэробные процессы денитрификации (удаление азота из стока). Переливы в камере-накопителе расположены таким образом, чтобы сточные воды протекали с наименьшей скоростью, благодаря чему в каждой камере происходит оседание грубодисперсных взвешенных частиц на дно.
- Дальше сток попадает в камеру предварительной аэрации. Там инициируются процессы аэробной переработки стока, а также происходит нитрификация, очищаемая вода перемешивается с активным илом с помощью системы крупнопузырчатой аэрации. В денитрификаторе происходит смешение очищаемых сточных вод с циркуляционными потоками. Сооружение работает в режиме крупнопузырчатой аэрации, что обеспечивает создание требуемых для денитрификации кислородных условий, а также поддерживает ил во взвешенном состоянии.
- Потом сточные воды в самотечном режиме направляются в аэротенк, где размещена инертная биологическая загрузка, насыщаются кислородом, взаимодействуют с фиксированным активным илом. Активный ил поддерживается во взвешенном состоянии за счет постоянно работающей системы аэрации ГРИНЛОС Пром 40.
- Дальше вода направляется во вторичный отстойник 1-ой ступени для отделения активного ила от сточных вод. В камере ламинарного отстойника, происходит осаждение дополнительного осадка. Задержанный осадок вместе с предварительно нитрифицированным стоком направляется в камеру-накопитель. Осаждение взвешенных частиц в ламинарном отстойнике протекает до 4-х раз эффективнее, чем в обычном отстойнике.
- Потом сточные воды в самотечном режиме поступают в аэробный биореактор, оснащенный загрузочным материалом, на стадию глубокой биологической переработки. В биореакторе постоянно поддерживается оптимальный гидравлический и кислородный режим за счет управляемой системы аэрации и рециркуляции. Микроорганизмы на данной ступени представлены двумя основными видами: прикрепленные на биозагрузке биопленки и свободно плавающий активный ил. За счет разнообразия биоценоза обеспечивается глубокое извлечение органических и азотных соединений.
- Следующий пункт назначения - биологический фильтр (биофильтр) – элемент ГРИНЛОС Пром 40, в котором сточная вода фильтруется через загрузочный материал, покрытый биологической пленкой (биопленкой), образованной колониями микроорганизмов.
Монтаж септика ГРИНЛОС Пром 40
При проектировании и монтаже ГРИНЛОС Пром 40 необходимо руководствоваться рекомендациями паспорта изделия, проектной документацией, рекомендациями проектировщиков, а также действующими нормами и правилами:
- СП 45.13330.2012 Земляные сооружения, основания и фундаменты;
- СП 70.13330.2012 Несущие и ограждающие конструкции;
- СП 12–135–2003 Безопасность труда в строительстве;
- СП 22.13330.2011 Основания зданий и сооружений;
- СП 32.13330.2012 Канализация. Наружные сети и сооружения.
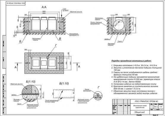
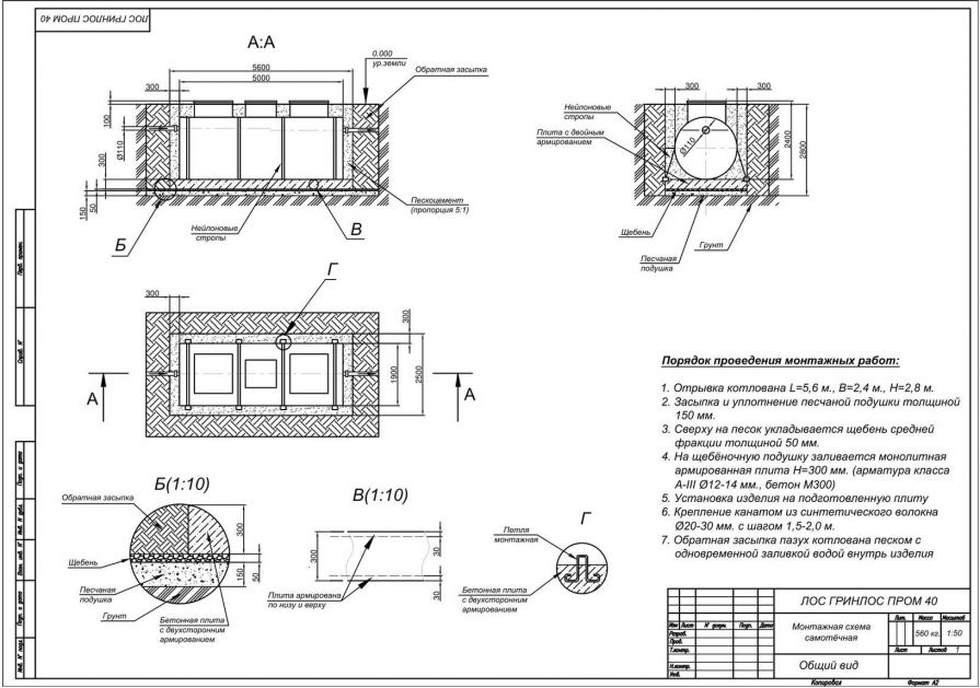
- Подготовка котлована. Яма под установку ГРИНЛОС Пром 40 должна иметь габаритные размеры на 300 мм шире габаритов станции (5000x1920x2400 мм) с каждой стороны. Ее дно представляет собой горизонтальную (отклонение от горизонта не более ± 3 мм) поверхность без выступающих элементов. Сам котлован под оборудование должен иметь откосы, исключающие осаждение и обвал грунта на плиту основание. При необходимости, стенки можно укрепить.
- Установка бетонной армированной плиты. В котловане по его периметру и на всю глубину устанавливается опалубка, на дне которой заливается бетонная плита-основание, укрепленная двухслойным армированием. Толщина плиты рассчитывается исходя из габаритных размеров оборудования и удельного веса. По периметру оборудования с отступом 100–150 мм из плиты вертикально выпускается арматура, связанная с горизонтальной арматурой плиты основания, на высоту достаточную для привязки к горизонтальной арматуре обвязки станции. Поверхность плиты выравнивается цементной стяжкой с отклонениями по горизонтали ± 3 мм.
- Установка ГРИНЛОС Пром 40. Перед началом работ выполняется входной контроль качества, осмотр оборудования с целью обнаружения дефектов, полученных при транспортировке и хранении, с последующим подписанием акта передачи оборудования в монтаж. Так как станция имеет вес 560 кг, установка производится монтажным краном, с помощью четырехветвевой стропы. Септик монтируется строго по уровню. После установки он фиксируется на плите синтетическими стропами за заранее подготовленные монтажные петли в плите.
- Обратная засыпка (бетонирование). При заглублении септика на глубину не более 250 мм от верхнего пластикового горизонтального перекрытия до запланированного уровня земли, в однородных грунтах с низким уровнем вод обратную обсыпку допустимо производить песком смешанным с цементом (марка не ниже М500). Соотношение цемента и песка для обсыпки составляет 1:5. Песчано-цементная засыпка производится послойно, с обязательным трамбованием и проливкой водой каждого слоя. Толщина каждого слоя 300 мм. При условии уровня грунтовых вод выше 1500 мм от уровня земли, при наличии плывуна, скальных грунтов и прочих нестандартных ситуациях, а также в случае заглубления ГРИНЛОС Пром 40 более чем на 250 мм песчано-цементную смесь необходимо заменить бетоном. Одновременно с засыпкой септика он заполняется водой, уровень воды должен превышать уровень засыпки (бетонирования) не менее чем на 200 мм и не более чем на 500 мм.
Схемы монтажа:
Способы отвода очищенной воды
Монтаж с самотечным отводом очищенных сточных вод в дренажную канаву. Такой способ отведения очищенных сточных вод подходит для участков с хорошо впитывающими грунтами, такими как песок или супесь (песок, супесь). Важно, чтобы уровень грунтовых вод был низким и очищенная воды свободно отводилась от выпуска трубопровода. В противном случае существует риск засорения трубопровода или даже обратного затопления септика ГРИНЛОС Пром.
Монтаж с самотечным водоотведением в дренажный элемент. Это способ отведения очищенных сточных вод для участков с хорошо поглощающими влагу грунтами. Он позволяет организовать их доочистку и при этом является хорошим способом избежать засорения трубопровода. В условиях высокого уровня грунтовых вод имеет риск обратного затопления станции.
Монтаж с самотечным водоотведением в фильтрующий колодец. Способ подходит для участков с хорошо поглощающими влагу грунтами и обязательно низким уровнем грунтовых вод. Колодец может быть выполнен из бетонных колец или при помощи пластикового колодца с перфорированным основанием и стенками. При монтаже колодца на выпуск трубы рекомендуется смонтировать обратный клапан, а под ним – аварийный насос. Это необходимо для защиты станции от обратного затопления.
Монтаж с принудительным водоотведением в канаву, дренажный элемент или фильтрующий колодец. Это способ характерен для моделей ГРИНЛОС Пром с маркировкой «ПР». Он, как и сами эти модели, предназначен для использования в условиях высокого уровня грунтовых вод и при слабовпитывающих грунтах, таких как суглинок и глина.
Эксплуатация и обслуживание
Эксплуатация септика ГРИНЛОС Пром 40 основана на биологической переработке сточной воды при активной жизнедеятельности микроорганизмов. Основной участник процесса биологической переработки — активный ил. Если возникают условия, неблагоприятные для развития, роста микроорганизмов, то процесс переработки ухудшается. Чтобы предотвратить возникновение вышеуказанной ситуации необходимо соблюдать культуру использования системой водоотведения. При этом рекомендуется соблюдать общие правила использования систем биологической переработки и аэрационных установок.
Запрещается сброс в канализацию:
- строительных отходов: мусора, песка, цемента, извести, строительных смесей и прочего;
- нефтепродуктов, горюче-смазочных материалов, красок, растворителей, антифризов, кислот, щелочей, спирта и прочего;
- большого количества стоков после отбеливания белья хлорсодержащими препаратами («Персоль», «Белизна» и им подобные);
- лекарств и лекарственных препаратов;
- шерсти домашних животных в больших количествах;
- антисептических средств любого вида, в том числе и насадок с дозаторами на унитаз.
Разрешается сброс в канализацию:
- мягкой, легко разлагающейся туалетной бумаги;
- стоков стиральной машины, если применяются стиральные порошки без хлора;
- кухонных стоков, если применяются моющие средства без хлора;
- душевых, ванных и банных стоков;
- небольшого количества средств для чистки унитазов, санфаянса и кухонного оборудования;
- препаратов для биологической очистки труб от жировых отложений;
- биологических препаратов, предназначенных для интенсификации работы септиков и очистных сооружений.
Пример установки
Похожие товары
Фотогалерея выполненных монтажей
Остались вопросы? Свяжитесь с нами!
Мы всегда готовы бесплатно проконсультировать по вопросам, связанным с продукцией Гринлос, а также помочь с выбором оптимальной модели септика для решения ваших задач.
